承载着文化交融与传承内涵的临夏民族大剧院
时间:2026-03-19 10:50:47
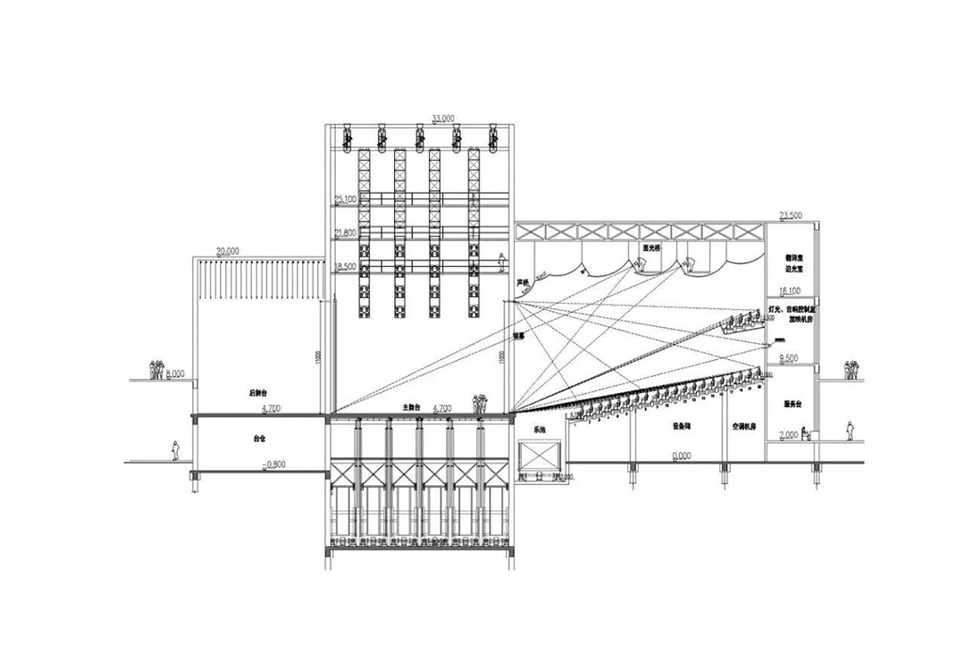
临夏民族大剧院(又称穹窿之花)是甘肃省临夏回族自治州临夏市的地标性文化建筑,位于规划新城核心区、南滨河东路北侧。设计灵感源自阿曼马斯喀特大清真寺的穹顶形态与几何纹理,以 “雪山白” 为主色调,外立面采用类似鸟巢的箱型钢梁焊接编织结构,壳体、幕墙、纹理三合一;建筑从底部 “不透” 向上逐步过渡到顶部 “全透”,将传统穹顶意象抽象化,兼具民族风情与现代感;前方的镜面水池进一步强化了建筑的对称美感与光影层次。

作为临夏市重要的文化艺术展演中心,这里既是本地民族文化(如 “花儿” 艺术)的展示平台,也承接国内外各类高水平演出与文化交流活动,提升了城市的文化品位与公共空间品质。























除非注明,以上信息均由
浙江万豪空间结构集团有限公司提供,转载请注明出处:http://www.nbmojiegou.com//baike/1422.html
下一篇: 没有了!
膜结构体育设施
膜结构交通设施
膜结构景观设施
膜结构工业设施
内膜吊顶设施
膜结构商业设施





